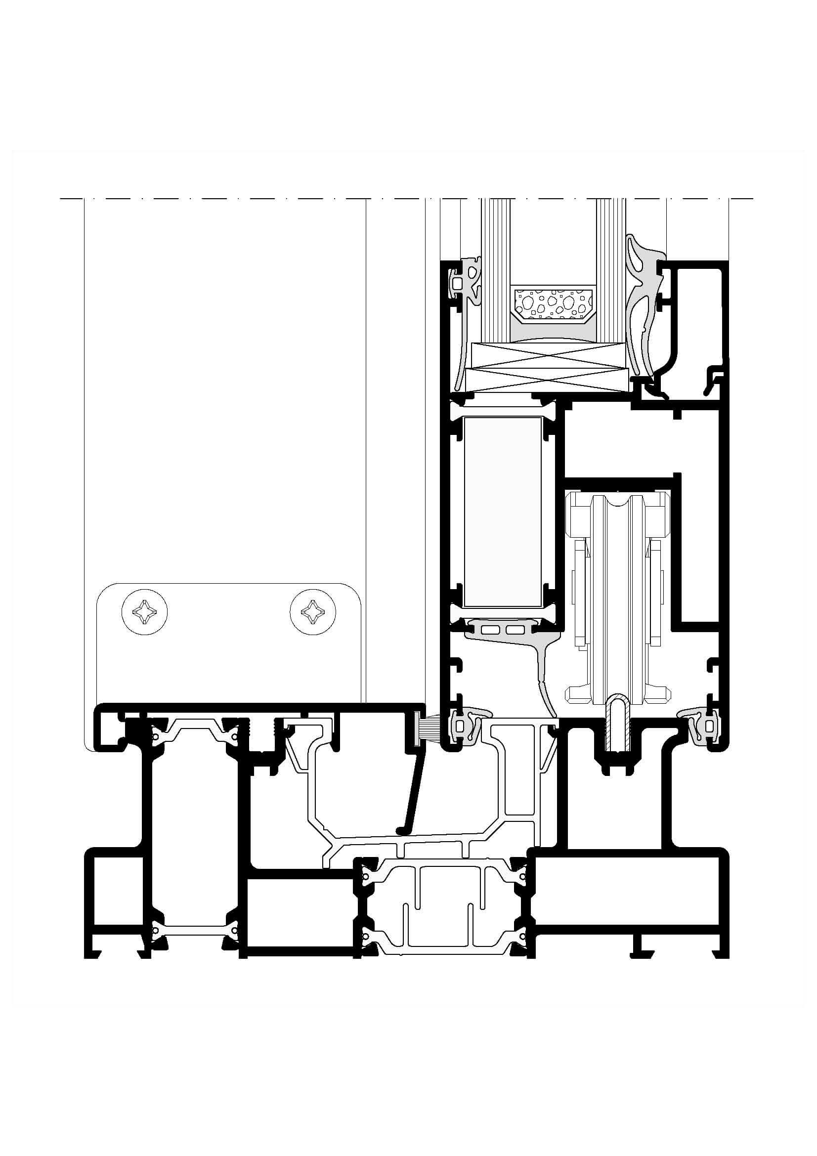
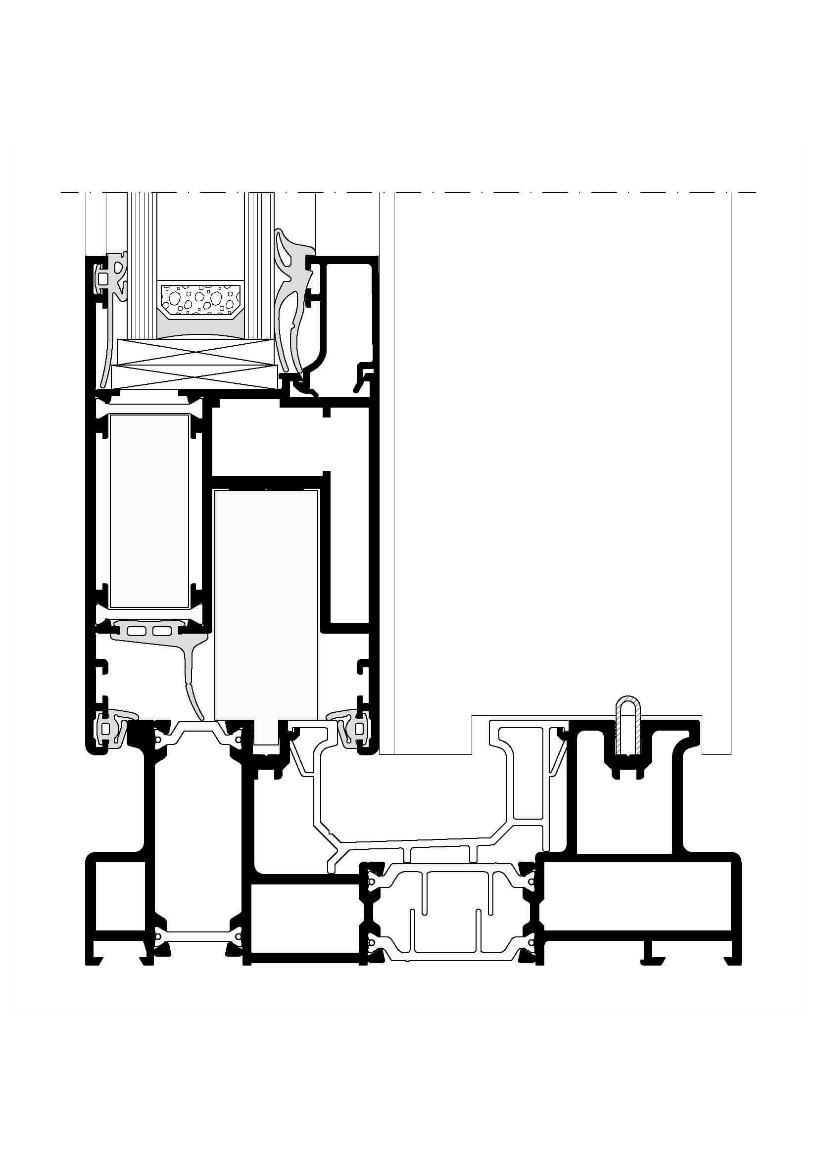
Kasa ve kanatlar çok odacıklı olarak tasarlanmıştır. Köşe bağlantılarında pinli sistem de kullanılabilir. En iyi ısı yalıtım değerlerini sağlar. Kullanılan cam tipine göre Ud-değeri < 1,0 W / (m² K) olabilir. Diğer bir avantajı ise hızlı ve etkili işlenebilirliğidir. Kaldır-sür sistemimizle 250 kg’ye kadar kanat çalıştırılabilirken özel aksesuarlarla bu ağırlık 400 kg.’ye kadar çıkartılabilir.

TEKNİK ÖZELLİKLER


  • Montaj derinliği: Kasa 134 mm, Sürme Kanat 60 mm, Orta Kayıt 60 mm
  • Camlama genişliği: 14-34 mm
  • EN 12208 standardına göre E 750 su geçirimsizliği
  • EN 12412-2: Uf = 2,5 W / (m2 K) ısı yalıtımı
  • Hırsızlığa karşı koruma: RC2